金沢市

三ツ屋町 中古一戸建

2,380万円

この物件に関するお問い合わせ

お問い合わせフォーム

お問い合わせフォームにて、物件名記載の上、お気軽にご連絡ください。

お電話でのお問い合わせはこちら

076-255-6081

ABOUT

この物件に関するご説明

浅野川線、三ツ屋駅より徒歩3分!海側環状にもアクセス抜群!お家の前でお子様が遊んでいても大丈夫☆ 水廻り、和室から洋室へのリフォームなど、即入居可のリフォーム済み。 ご内見のお問合せをお待ちしております。

INFORMATION

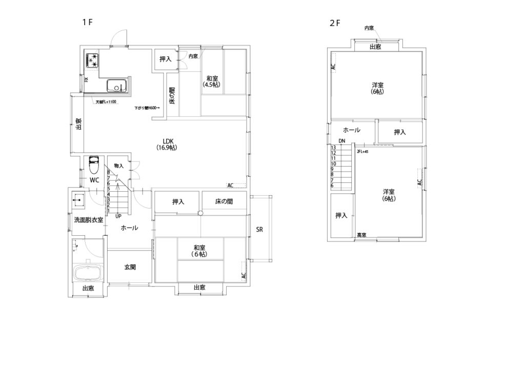
物件概要

価格 2,380万円
土地面積 138.94㎡ (42.02坪) 公簿
延床面積 104.00㎡ (31.46坪)
築年数 昭和60年3月 
間取り 4LDK
駐車台数 2-3台
都市計画 市街化区域
用途地域 第一種住居地域
建蔽率・容積 60%・200%
現況 空家
地目 宅地
小・中学校 浅野川小学校/浅野川学校
前面道路 西側幅員約4.6m
飲水/排水 公営/下水道
電気
引渡し 2026年1月中旬頃
交通 浅野川線「三ツ屋町」駅より徒歩約3分
権利関係 所有権
取引様態 媒介
備考 キッチン・洗面化粧台・トイレの水廻り新品交換済み。畳の新調、2階和室から洋室に変更済み。
資料ダウンロードはこちらから

ACCESS

アクセス

金沢市三ツ屋町ハ44-5

この物件に関するお問い合わせ

お問い合わせ

お問い合わせフォームより
お気軽にお問い合わせください

お電話でのお問い合わせはこちら

076-255-6081

ACCESS

アクセス情報

〒920-8202
石川県金沢市西都1丁目226